
resepsiyon


wc
Müşterimiz bize ulaştığında elinde tamamen yanlış öngörülerle oluşturulmuş bir proje vardı. Fonksiyonların genel çözümü anlamında da, estetik kaygılar anlamında da. Kendi kurumsal kimliği dışında tamamen genel beğenilere hitap edecek, evrensel normlarda bir tasarım talebiyle yaklaştı.


lobi



koridor
ofisler






TİP
ÇALIŞMA ALANI
LOKASYON
BAHÇELİEVLER
ALAN
6500 M2
YIL
2020
Eldeki tüm verileri bir kenara bırakıp, cephesinden ortak alanlarına, ofis kullanımlarına kadar tamamen yeniden ele alarak tasarladık. Ortak alan zeminlerinde kullandığımız, dört farklı renkten oluşan diyagonal döşenmiş mermerler yapının ana karakteri oldu. Bir yandan olabildiğince modern, bir yandan da tüm geleneksel özellikleri taşıyor. Ofis içlerinde tercih ettiğimiz terracota rengi mobilyalar da yine hem etkileyici hem de geleneksel. Fonksiyonların doğru tanımlanmış olması ve tüm seçimleriyle görsel anlamda etkileyici bir mekan olması yanında, müşterinin ticari beklentilerini de (kiralama, satış vs.) hızlı bir şekilde karşılamasını da sağlayacak bir tasarıma imza atmış olduk.


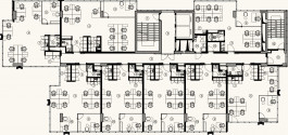
ZEMİN KAT
1 MERDİVEN
2 ASANSÖR HOLÜ
3 KAT HOLÜ
4 RESEPSİYON / BEKLEME ALANI
5 BAYAN VE ENGELLİ WC
6 BAY WC
7 DUMAN HOLÜ
8 YANGIN MERDİVENİ
9 YAYA YOLU
10 TERAS
1. KAT
1 MERDİVEN
2 ASANSÖR HOLÜ
3 KAT HOLÜ
4 TİP OFİS
5 GİRİŞ HOLÜ
6 WC
7 MUTFAK
8 ARŞİV
9 YÖNETİCİ ODALARI
10 ARA YÖNETİCİ ALANI
11 DUMAN HOLÜ
12 YANGIN MERDİVENİ
13 ÇÖP ODASI
14 ELEKTRİK ODASI
Benzer Projeler

resepsiyon


Müşterimiz bize ulaştığında elinde tamamen yanlış öngörülerle oluşturulmuş bir proje vardı. Fonksiyonların genel çözümü anlamında da, estetik kaygılar anlamında da. Kendi kurumsal kimliği dışında tamamen genel beğenilere hitap edecek, evrensel normlarda bir tasarım talebiyle yaklaştı.
wc


lobi



koridor




ofis alanı


Benzer Projeler
Bizimle tanışmak ve projeniz üzerine görüşmek için lütfen iletişime geçin.
Caddebostan Mah. Bağdat Cad. No:306 Daire: 7 Kadıköy-İstanbul
+90 532 688 83 14
info@mplusmimarlik.com
Bizimle tanışmak ve projeniz üzerine görüşmek için lütfen iletişime geçin.
Caddebostan Mah. Bağdat Cad. No:306 Daire: 7 Kadıköy-İstanbul
+90 532 688 83 14
info@mplusmimarlik.com